Trong các mẫu nhà ở 3 tầng hiện đại, một ngôi nhà vừa đáp ứng nhu cầu sinh hoạt tiện nghi, vừa mang lại cảm giác thư giãn, thoáng mát là mong muốn của rất nhiều gia đình trẻ. Mẫu nhà ở 1 trệt 2 lầu tum sân thượng, diện tích 5x16m dưới đây chính là lựa chọn lý tưởng – sự kết hợp hài hòa giữa thiết kế hiện đại, công năng tối ưu và tính thẩm mỹ cao.
Mẫu nhà ở 3 tầng 5x16m – Nét đẹp tinh tế của phong cách hiện đại
Ngôi nhà nổi bật với hình khối kiến trúc vuông vắn, mạnh mẽ và tinh gọn. Tông màu trung tính chủ đạo gồm trắng – xám – nâu gỗ được phối hợp nhịp nhàng, tạo nên vẻ sang trọng mà không kém phần ấm cúng.
Mặt tiền sử dụng vật liệu kính cường lực kết hợp lam chắn nắng và ốp gạch giả đá, giúp không gian luôn ngập tràn ánh sáng tự nhiên nhưng vẫn đảm bảo sự riêng tư. Ban công kính ở các tầng tạo cảm giác nhẹ nhàng, hiện đại và mở rộng tầm nhìn cho gia chủ.
Khu vực tầng trệt được thiết kế cửa cổng sắt sơn tĩnh điện kết hợp nan gỗ ngang, mang đến vẻ đẹp hài hòa giữa hiện đại và truyền thống. Trên cùng là giàn phẹt sân thượng, chắn nắng cho sân thượng rộng thoáng, vừa là nơi lý tưởng để thư giãn vừa tăng tính thẩm mỹ cho mặt tiền nhà 3 tầng.

Mẫu Nhà Ở 3 Tầng 5x16m
>>> Tham khảo đơn giá xây dựng tại TP.HCM:
Công năng nhà 3 tầng tum sân thượng 5x16m – Tiện nghi cho gia đình nhiều thế hệ
Thiết kế nhà 3 tầng diện tích 5x16m được kiến trúc sư sắp xếp khéo léo, tối ưu diện tích và mang đến sự thoải mái trong sinh hoạt hằng ngày.
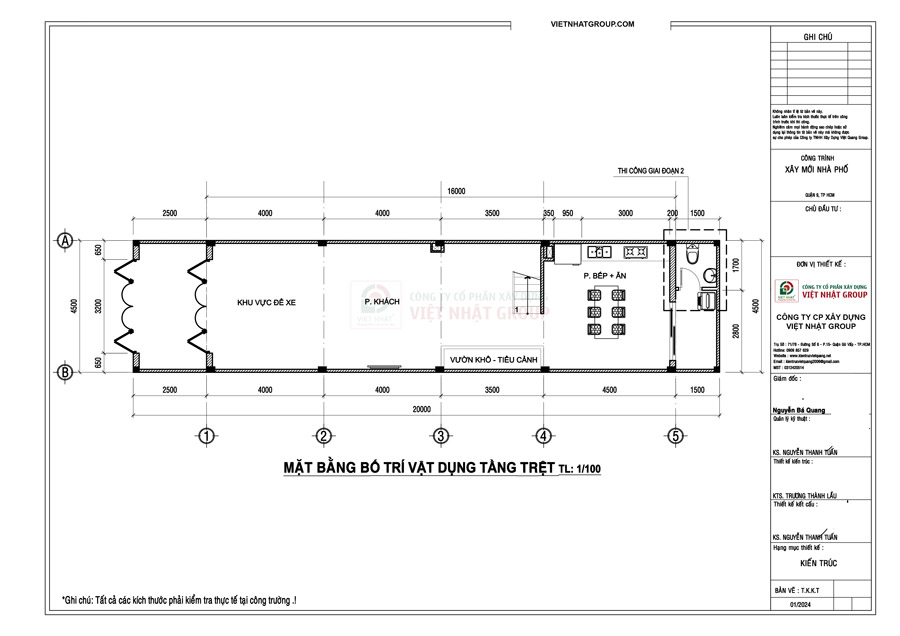
Tầng trệt – Không gian sinh hoạt chung ấm cúng
Từ cổng trước bước vào là sân trước thoáng đãng, đủ diện tích để trồng cây xanh hoặc đỗ xe gọn gàng. Phòng khách được đặt ngay phía trước, kết nối trực tiếp với khu vực tiểu cảnh trong sảnh thang, tạo điểm nhấn sinh động và điều hòa không khí tự nhiên. Phòng bếp – ăn bố trí cuối nhà, đảm bảo riêng tư và thuận tiện cho sinh hoạt gia đình. Cuối cùng là WC chung ở sân sau, phục vụ cho nhu cầu sử dụng tầng trệt và khách đến chơi.

Bản vẽ thiết kế mặt bằng công năng tầng trệt
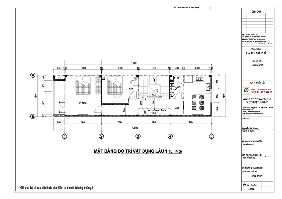
Lầu 1 – Không gian riêng cho nghỉ ngơi
Tầng này gồm 02 phòng ngủ rộng rãi, được bố trí hợp lý ở mặt bằng phía trước ngôi nhà, đảm bảo sự riêng tư cho từng thành viên. Đặc biệt, thiết kế thêm phòng bếp phụ – giải pháp tiện lợi cho gia đình có nhu cầu nấu nướng riêng hoặc sinh hoạt độc lập. WC chung được đặt giữa tầng, dễ dàng sử dụng. Một ô thông tầng đối diện cầu thang giúp lưu thông không khí, mang ánh sáng tự nhiên vào nhà.

Bản vẽ thiết kế mặt bằng công năng lầu 1
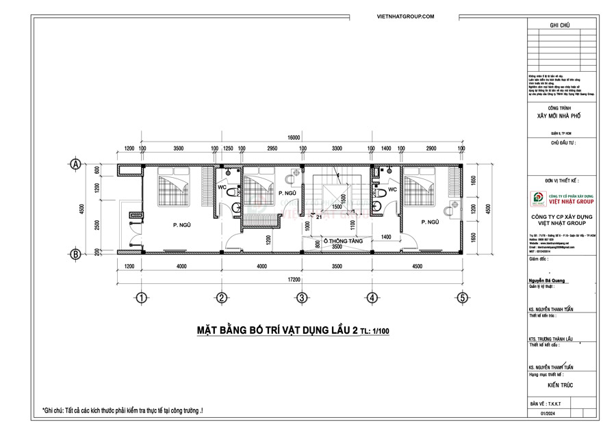
Lầu 2 – Phòng ngủ chính và không gian tiện nghi
Trên lầu 2 là phòng ngủ master có WC khép kín, đáp ứng sự riêng tư và thoải mái cho vợ chồng. Ngoài ra, có thêm 02 phòng ngủ nhỏ sử dụng chung 01 WC ngoài, phù hợp cho con cái hoặc người thân trong gia đình.

Bản vẽ thiết kế mặt bằng công năng lầu 2
Lầu 3 – Không gian sinh hoạt tâm linh và thư giãn
Tầng trên cùng được bố trí phòng thờ nghiêm trang, hướng ra phía trước nhà – vị trí đắc địa theo phong thủy. Phía sau là phòng giặt và khu phơi đồ tiện lợi. Sân thượng trước – sau được thiết kế rộng rãi, có thể bố trí bàn trà, trồng cây xanh, hoặc làm nơi thư giãn ngoài trời cho cả gia đình.

Bản vẽ thiết kế mặt bằng công năng tầng thượng
Với diện tích vừa phải nhưng cách bố trí thông minh, mẫu nhà ở 3 tầng 5x16m mang đến không gian sống thoải mái, tiện nghi và tiết kiệm chi phí xây dựng. Thiết kế này đặc biệt phù hợp cho các gia đình trẻ tại TP.HCM – nơi quỹ đất hạn chế nhưng nhu cầu về một tổ ấm đầy đủ công năng luôn được đặt lên hàng đầu.
Không chỉ đảm bảo tính thẩm mỹ, ngôi nhà còn chú trọng yếu tố gió – sáng – xanh, giúp không gian luôn thoáng mát, giảm bức bí giữa đô thị đông đúc. Đây chính là mẫu nhà lý tưởng kết hợp giữa phong cách hiện đại và công năng thực tế, đáp ứng hoàn hảo nhu cầu sống của gia đình Việt.
Bạn cần thêm thông tin về dự án xây dựng nhà phố này không? Việt Nhật Group cung cấp quy trình xây nhà chuyên nghiệp, bảng báo giá xây nhà trọn gói, tư vấn xây nhà theo nhu cầu của bạn. Hỗ trợ miễn phí, tận tâm!
Từ khóa: xây nhà trọn gói | xay nha | sửa nhà trọn gói | dịch vụ sửa nhà | xây nhà phần thô | giá xây thô và nhân công hoàn thiện





































![[Dự Án Mới] Ký Hợp Đồng Thi Công Trọn Gói Nhà Tân Cổ Điển](https://vietnhatgroup.com/wp-content/uploads/2026/04/Ky-Hop-Dong-Thi-Cong-Tron-Goi-Nha-Tan-Co-Dien-2.jpg)

































